For more information or to schedule a showing, click here.

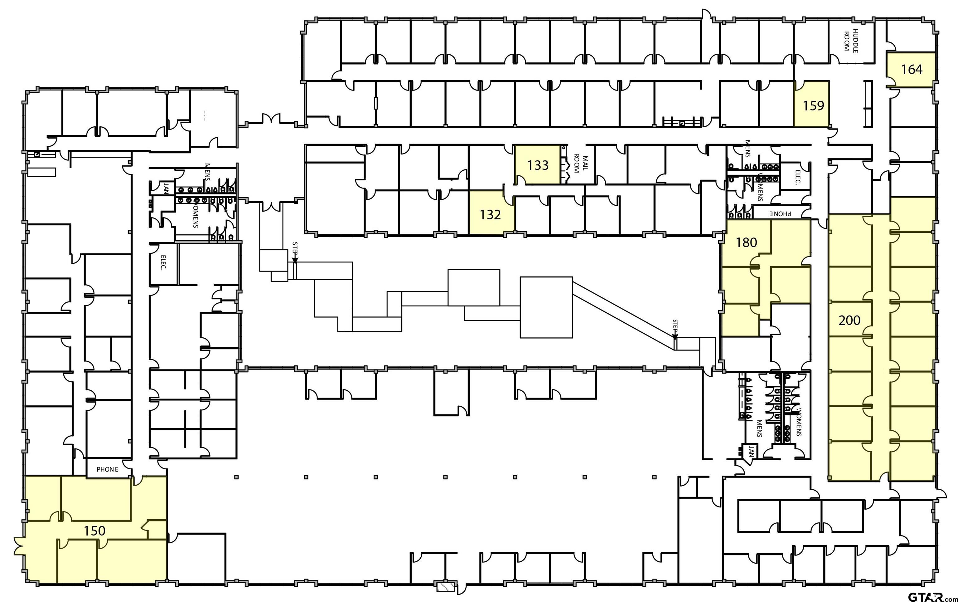
1101 E Southeast Loop 323 Bldg Iv Ste
Tyler, Tx 75703

Price: $3,050
Property Type: commercial_industrial
MLS #: 25004914
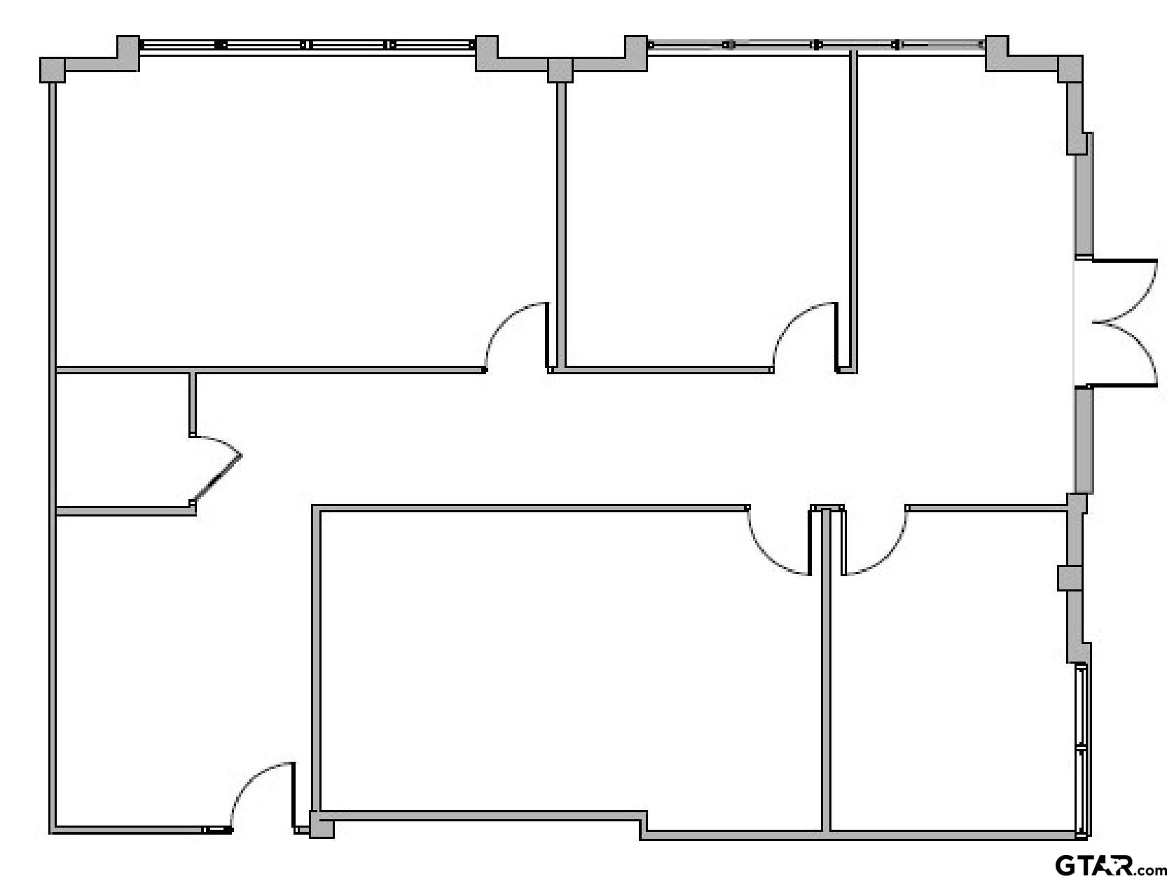
Private exterior suite entrance! Full service lease. Tenant's base rent includes janitorial services and all utilities except for electric. Multiple suite sizes available. 24-hour badge access. Central heating and A/C. On-site USPS box. Surface parking with exterior lighting.
Area: Smith
Year Built: 2019
Bedrooms: None
Bathrooms: None
Sq Ft: 2045
Acres: 6.76

Courtesy: NeJame, Mitchell • Drake Real Estate & Investments • 903-581-3737

The data relating to real estate for sale on this website comes in part from the Internet Data Exchange (IDX) of the Greater Tyler Association of REALTORS Multiple Listing Service. The IDX logo indicates listings of other real estate firms that are identified in the detailed listing information. The information being provided is for consumers' personal, non-commercial use and may not be used for any purpose other than to identify prospective properties consumers may be interested in purchasing. This information is deemed reliable, but not guaranteed.

This content last refreshed on 10/30/2025 01:00 PM. Some properties which appear for sale on this web site may subsequently have sold or may no longer be available.